一、二步法模具
二步法模具分胚模和瓶模,以下分别介绍瓶胚模具和瓶模具。
(1)二步法瓶胚模具

(图1: 瓶胚模具组合图)

(图2: 瓶胚单腔模组合图)

(图3: 瓶模实物参考图)
(2)二步法瓶模具
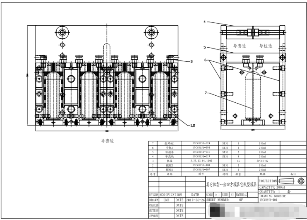
一出四的自动机瓶模组合图如下图4所示。

(图4: 一出四的自动机瓶模组合图)
高速机瓶模:高速吹瓶机上通常配有多个相同单腔瓶模,结构如下图5所示。

(图5: 单腔瓶模)
二
PET吹塑模具不良常见问题及解决对策
(1)半模
发生原因:
1.模内压力太低。
2.喷嘴有阻塞。
3.没有足够的排气。
改善对策:
1.提高射出保压。
2.清洁喷嘴。
3.清洁射出模穴、唇模和芯棒。

(图6: 半模)
(2)毛边
发生原因:
1.第二次射出压力太大.
2.射速太高。
3.唇模、射出模穴、射出公模有缺陷。
4.异物侵入唇模、芯棒和模穴。
改善对策:
1.降低射出保压。
2.降低射速。
3.修改模具。
4.清洁模具表面

(图7: 毛边)
(3)凹环
发生原因:在射出芯棒和射出模穴上,有一层薄薄的凝结水(湿度太高)。
改善对策:
1.擦干水份。
2.降低湿度。
3.装除湿机。

(图8: 凹环)
(4)壁厚不均
发生原因:
1.唇模的平面没调整好。
2.公模移位(由于第二次射出压力影响)。
3.芯棒变形。
4.喷嘴接触力太高。
改善对策:
1.调整唇模的平面。
2.降低第二次射出压力(.缩短第二次射出保压时间)。
3.更换芯棒。
4.降低喷嘴接触力。

(图9: 壁厚不均)
(5)挤压
发生原因:
1.瓶胚挤压发生部位的温度太低。
2.其它部位的温度太高。
3.瓶胚壁厚不均。
改善对策:
1.增加挤压发生部位的温度。
2.降低其它部位的温度。
3.修改瓶胚厚度,检查芯棒垂直度;更换芯棒或者唇模。

(图10: 挤压)


































